
|
 |
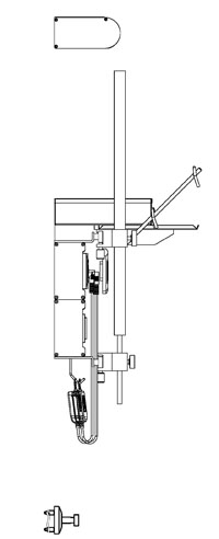
Bolesnički set intenzivne nege UBS 2211 realizovan je od aluminijumskih eloksiranih profila u prirodnoj boji i obezbeđuje priključke jake struje (mreža, agregat, invertor), priključke slabe struje (monitoring, poziv sestre, telefon, računar), indirektnu, direktnu rasvetu i svetlo za nadzor; kao i priključke za medicinske gasove (kiseonik, komprimovani vazduh, azot oksidul i vakum).
Aluminijumski profil za rasvetu je izdignut u odnosu na dva spojena profila, pri čemu je u gornjem profilu instalacija jake i slabe struje (razdvojeno pregradom) a u donjem profilu instalacija sa maksimalno četiri bakarne cevi Ø 8 x 1mm.
Iznad i ispod dva spojena profila nalaze se eloksirane aluminijumske šine 25 x 10 mm koje omogućavaju kopčanje velikog broja aparata, uređaja i pribora, kao i nošenje i vođenje nosača monitora.
Obično se ispod vezanih aluminijumskih profila montiraju još jedna ili dve aluminijumske šine.
PRIKLJUČCI JAKE STRUJE
Po jednom krevetu ugrađuje se šest šuko priključnica i to četiri na agregat (crvene) i dve na invertor (zelene). Šuko priključnice se sa agregata i invertora napajaju preko izolacionih transformatora. Svakoj grupi od dve šuko priključnice pripada jedna grupa od dva priključka za izjednačavanje potencijala.
PRIKLJUČCI SLABE STRUJE
U fazi prozvodnje i montaže kanala za priključivanje monitora u sistemu monitoringa postavlja se jedan ”rezervni priključak” po svakom krevetu. Do tog priključka se, u vremenu izvođenja električne instalacije, postavlja gibljivo crevo Ø 19, od centralnog sestrinskog pulta, a priključni konektor i odgovarajući kabli se postavljaju u fazi montaže monitoring sistema.
Takođe, pored rezervnog priključka za monitoring sistem, postavlja se još jedan rezervni priključak sa gibljivim crevom za eventualno priključivanje telefona i računara kako bi se pristupilo računarskim mrežama i internetu.
Pored ovih rezervnih priključaka od elemenata slabe struje montira se još i pozivno-razrešna kombinacija za sistem poziva sestre (BIS 2040).
OSVETLJAVANJE
Pored toga što se za osvetljavanje sobe intenzivne nege koristi opšta rasveta na plafonu, a za preglede specijalna lampa za preglede, preporučljivo je iznad kreveta obezbediti indirektno i direktno svetlo, kako bi mogle da se prave kombinacije sa prethodnim svetlima.
U bolesničkom setu intenzivne nege UBS 2211 to obezbeđuje zidna svetiljka od eloksiranog aluminijumskog profila koje se montira iznad dva spojena profila dovoljno udaljena da između njih može da se pomera monitor na nosaču. Zidna svetiljka sadrži 2 x 36W fluo cevi za indirektnu rasvetu i 1 x 18W fluo cev za direktnu rasvetu.
Standardno, indirektna i direktna svetiljka rade u spoju sa elektronskim pretvaračem, čime su ispunjeni uslovi propisa da u sobama intenzivne nege ne postoje starteri za fluo cevi.
Za indirektnu i direktnu rasvetu moguće je obezbediti regulaciju osvetljenja, što je neophodno naglasiti u zahtevu za ponudu.
Indirektna rasveta se pali prekidačem u sestrinskom pultu, a direktna rasveta prekidačem na energetskom kanalu ili preko ručnog seta koji ujedno služi za poziv sestre.
PRIKLJUČCI ZA MEDICINSKE GASOVE
Donji kanal u bolesničkom setu namenjen je za postavljanje instalacije i montažu priključaka za medicinske gasove. Broj i raspored priključaka definiše kupac.
|
|